Lot 872, Arbor Green, Rolleston

Progressive Payments: $665,000

*Artist impression only. © Copyright of Today Homes Limited.
Lot 872, Arbor Green, Rolleston
Progressive Payments: $665,000

The advertised price is for a Progressive Payment structure with a Gross Yield of 4.77%. This package is also available as a Turnkey for $689,000 with a Gross Yield of 4.60%. Rental Appraisal information is available in the download.

Don't miss out on this tenant-ready investment package! Includes soft landscaping, letterbox and clothesline.

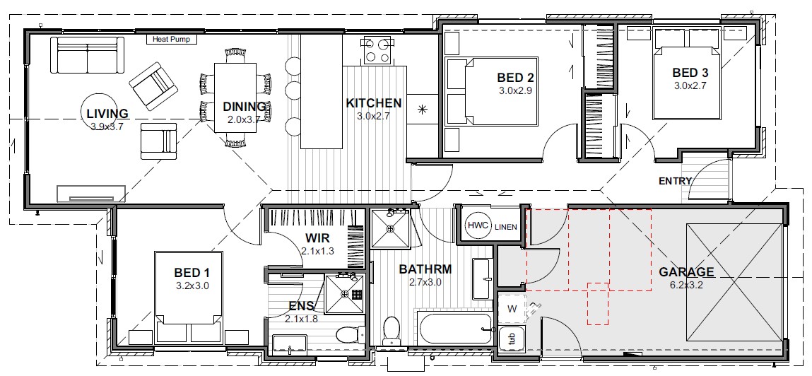
This three-bedroom, two-bathroom home offers practical, modern living with strong rental appeal. The open-plan kitchen, dining, and living areas at the rear flow seamlessly, while the primary bedroom off the lounge features a private ensuite and walk-in robe. Two additional bedrooms are located off the entry hallway, with a family bathroom conveniently nearby. A single-car garage completes the functional layout. Practical, stylish, and easy to maintain, this property is a smart investment opportunity.

Enquire
Download

Home Size

113m²

Land Size

260m²
3
1
2
2
Single
Key Features
Designer Kitchens with Stone Benchtop
Open Plan Kitchen/Living/Dining Areas
Three Double Bedrooms
Ensuite & WIR in Master