Lot 25, Karumata Oaks, Leeston

Progressive Payments: $709,900

*Artist impression only. © Copyright of Today Homes Limited.
Lot 25, Karumata Oaks, Leeston
Progressive Payments: $709,900

The advertised price is for a Progressive Payment structure with a Gross Yield of 4.83%. This package is also available as a Turnkey for $747,900 with a Gross Yield of 4.58%. Rental Appraisal information is available in the download.

Don't miss out on this tenant-ready Investment package! Includes soft landscaping, blinds package, letterbox and clothesline.

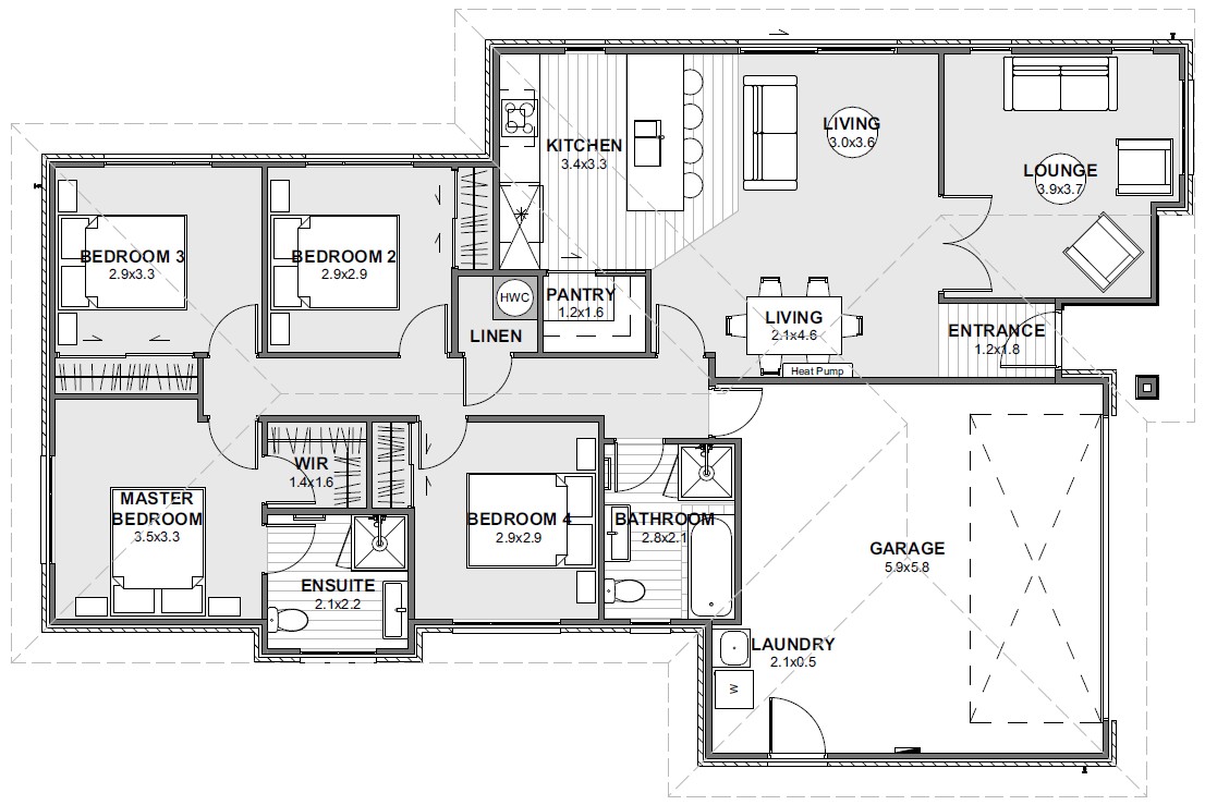
The DEVONPORT has everything you need for a growing family, all on a smarter budget. Featuring four bedrooms, including a master suite with a walk-in wardrobe and private ensuite, it offers space and comfort without compromise. The open-plan kitchen, family, and dining area is perfect for everyday living, complete with a walk-in pantry. A separate living room adds flexibility, while the dedicated laundry is tucked in the internal access double garage. With thoughtful storage and a functional layout, The Devonport delivers modern family living with great value.

Enquire
Download

Home Size

164m²

Land Size

558m²
4
2
2
2
Double
Key Features
Designer Kitchen with Stone Benchtop
Walk In Pantry
Four Double Bedrooms
Open Plan Kitchen/Dining/Living
Internal Access Double Garage
Secondary Separate Living Space