Lot 172, Karumata Oaks, Leeston

$735,500

*Artist impression only. © Copyright of Today Homes Limited.
Lot 172, Karumata Oaks, Leeston
$735,500

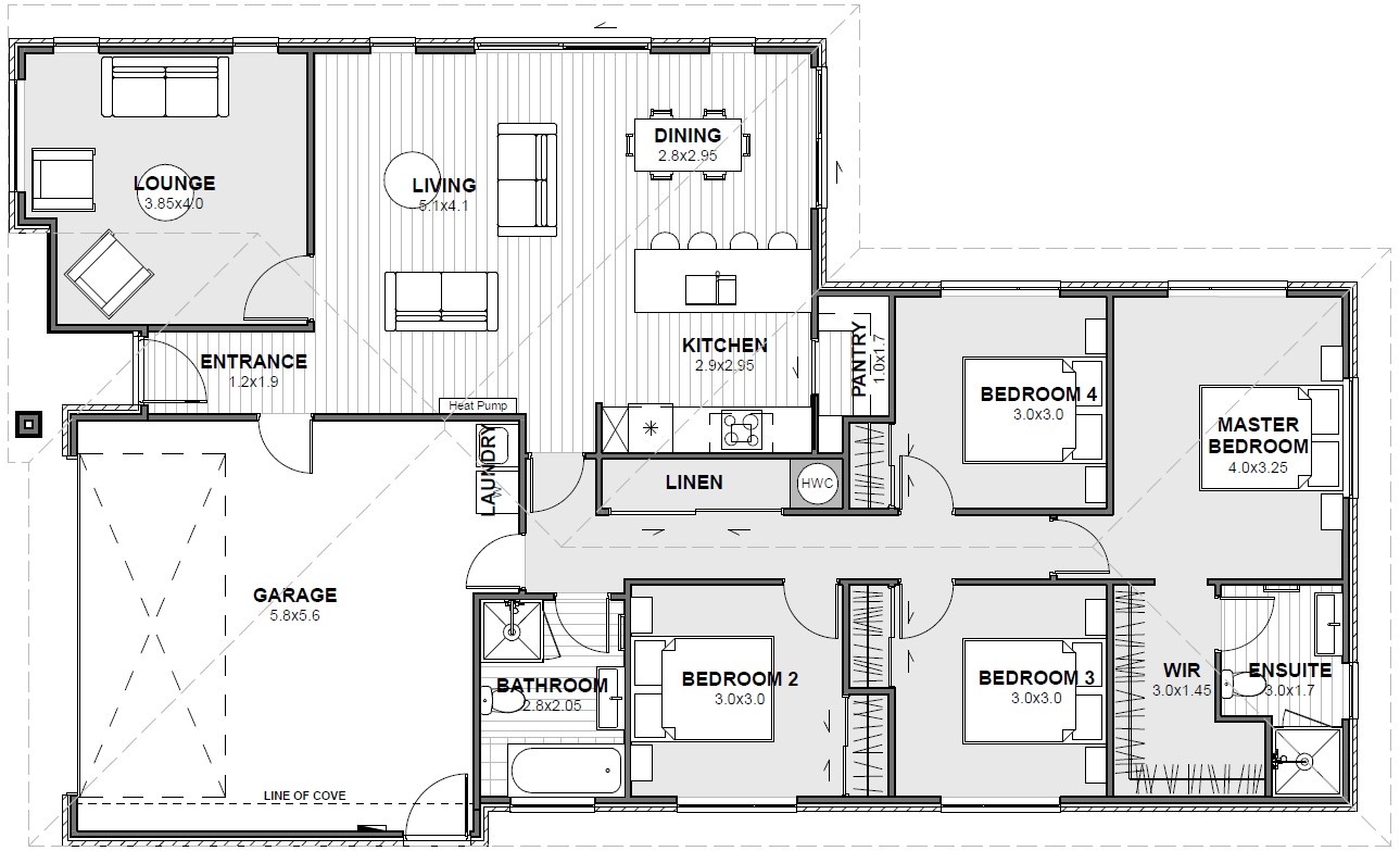
The ARBOR GREEN 4 is a well-designed family home that combines comfort and practicality. With four generous bedrooms, it offers flexibility for families, guests, or a home office. The open-plan kitchen, dining, and living area forms the heart of the home, creating an inviting space for everyday living and easy indoor-outdoor flow. The master suite features a walk-in wardrobe and private ensuite, while the remaining bedrooms are supported by a family bathroom and separate WC. A double internal access garage with integrated laundry and smart storage throughout completes this functional, modern layout.

Enquire
Download

Home Size

179m²

Land Size

627m²

Width

11.44m

Length

19.11m
4
2
2
2
Double
Key Features
Designer Kitchen with Stone Benchtop
Walk In Pantry
Four Double Bedrooms
Open Plan Kitchen/Dining/Living
Family Bathroom with Separate WC
Internal Access Double Garage