Lot 170, Karumata Oaks, Leeston

$722,500

*Artist impression only. © Copyright of Today Homes Limited.
Lot 170, Karumata Oaks, Leeston
$722,500

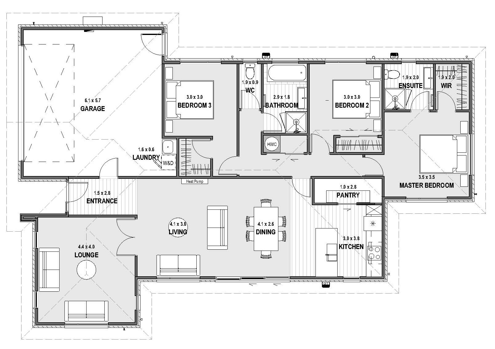
One of our most popular plans, The URBAN 3 blends style, space, and functionality. The open-plan kitchen, dining, and family area creates a seamless space for daily living and entertaining, complete with a walk-in pantry. A separate living room offers a quiet retreat, while three well-sized bedrooms, including a master suite with a walk-in wardrobe and ensuite, provide comfort for the whole family. A family bathroom with a separate WC adds convenience, and the internal access double garage with laundry completes this smart, versatile home—perfect for modern living.

Enquire
Download

Home Size

176m²

Land Size

627m²

Width

12.50m

Length

18.90m
3
2
2
2
Double
Key Features
Designer Kitchen with Stone Benchtop
Walk In Pantry
Three Double Bedrooms
Open Plan Kitchen/Dining/Living
Family Bathroom with Separate WC
Internal Access Double Garage