Lot 974, Rosemerryn, Lincoln

$879,000

*Artist impression only. © Copyright of Today Homes Limited.
Lot 974, Rosemerryn, Lincoln
$879,000

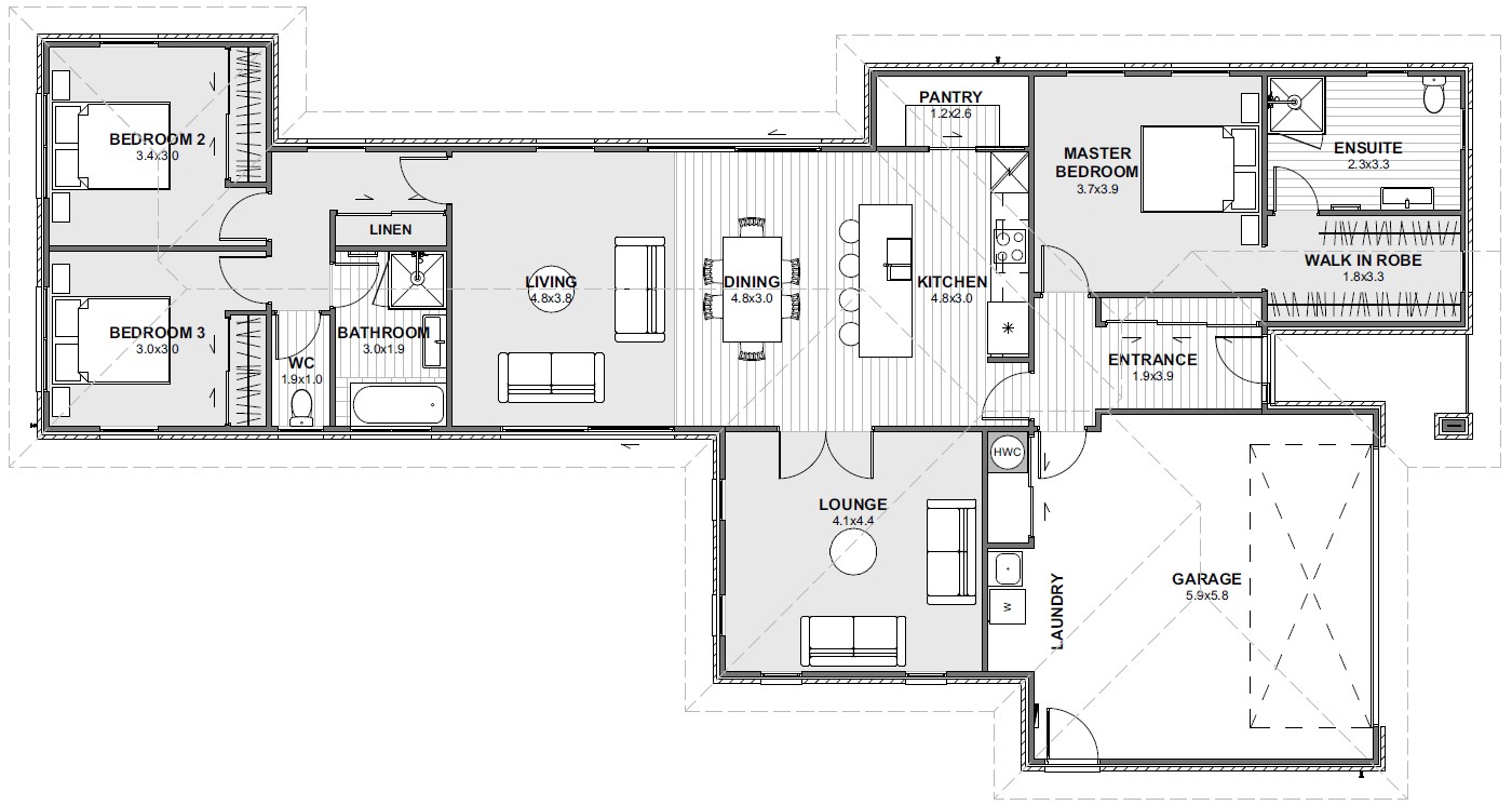
The BELLGROVE PLUS offers four bedrooms and two spacious living areas, perfect for modern family life. The open-plan kitchen, dining, and family zone includes a walk-in pantry and study nook, with a separate media/lounge for added flexibility. The master suite features a walk-in wardrobe and private ensuite. A dedicated laundry and internal access double garage add extra convenience, making the Bellgrove Plus a perfect blend of comfort, style, and functionality.

Enquire
Download

Home Size

192m²

Land Size

527m²

Width

12.38m

Length

19.97m
4
2
2
2
Double
Key Features
Designer Kitchen with Stone Benchtop
Four Double Bedrooms
Family Bathroom with Separate WC
Open Plan Kitchen/Dining/Living
Internal Access DoubleGarage
Secondary Living Space