Lot 477, Arbor Green, Rolleston

Progressive Payments: $789,000

*Artist impression only. © Copyright of Today Homes Limited.
Lot 477, Arbor Green, Rolleston
Progressive Payments: $789,000

The advertised price is for a Progressive Payment structure with a Gross Yield of 4.48%. This package is also available as a Turnkey for $819,000 with a Gross Yield of 4.31%. Rental Appraisal information is available in the download.

Don't miss out on this tenant-ready investment package! Includes soft landscaping, blinds package, letterbox and clothesline.

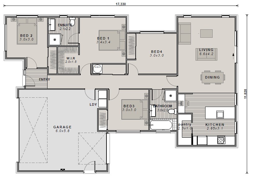
The WESTWOOD PLUS takes modern family living to the next level with well-sized bedrooms, a thoughtfully designed layout, and added functionality. The open-plan living, dining, and kitchen area seamlessly connects to the outdoors, making entertaining a breeze. A handy study nook provides a dedicated workspace, while the drive-through garage offers added convenience and storage. The master suite includes a walk-in wardrobe and ensuite, complementing three additional spacious bedrooms. With a balance of comfort and practicality, The Westwood Plus is a fantastic choice for growing families.

Enquire
Download

Home Size

169m²

Land Size

435m²
4
1
2
2
Double
Key Features
Designer Kitchens with Stone Benchtop
Open Plan Kitchen/Living/Dining Areas
Four Double Bedrooms
Ensuite & WIR in Master
Drive-through Double Garage
Tenant Move-In Ready