Lot 476, Arbor Green, Rolleston

Progressive Payments: $779,000

*Artist impression only. © Copyright of Today Homes Limited.
Lot 476, Arbor Green, Rolleston
Progressive Payments: $779,000

The advertised price is for a Progressive Payment structure with a Gross Yield of 4.53%. This package is also available as a Turnkey for $809,000 with a Gross Yield of 4.37%. Rental Appraisal information is available in the download.

Don't miss out on this tenant-ready investment package! Includes soft landscaping, blinds package, letterbox and clothesline.

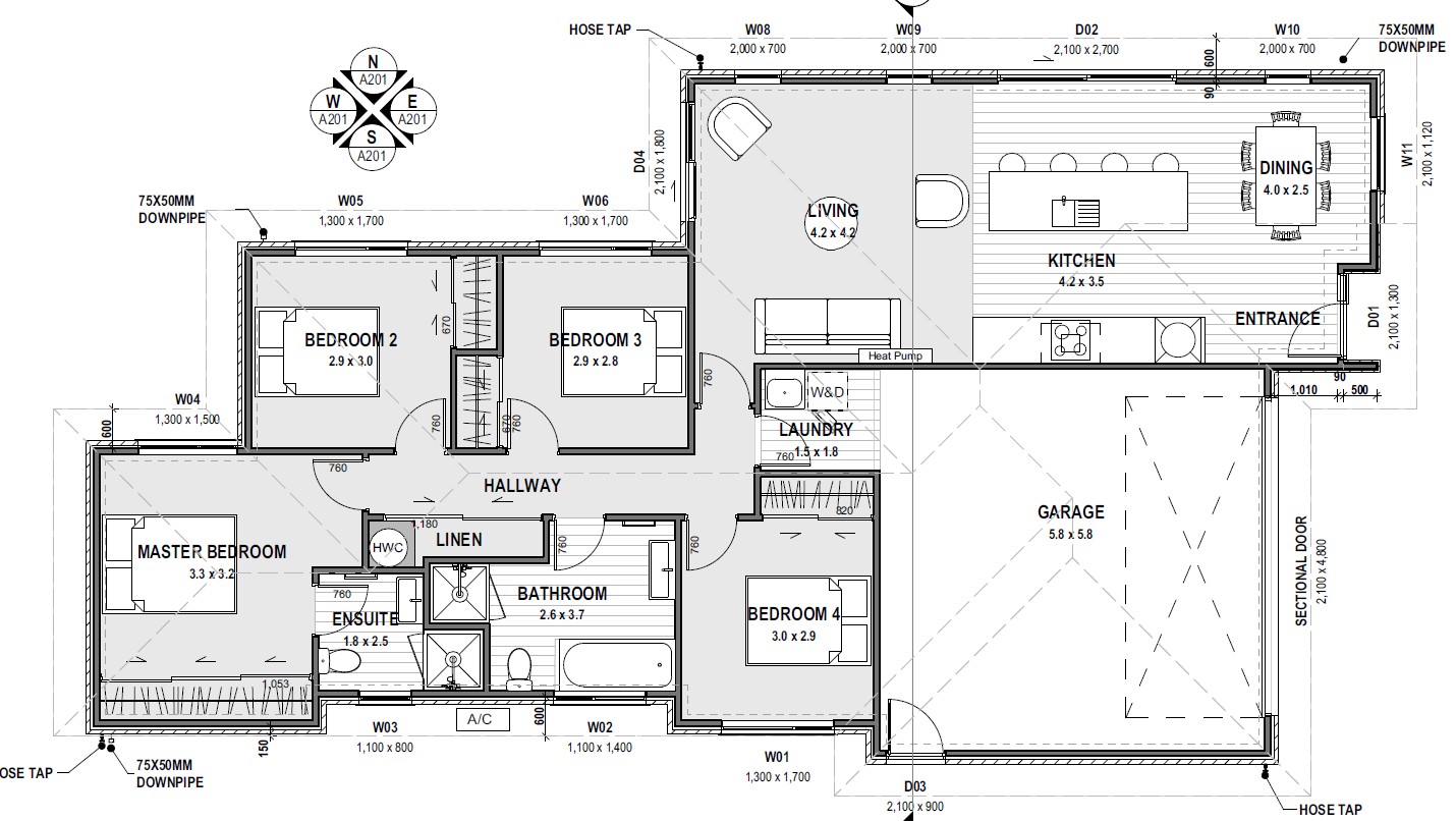
The BEDFORD offers effortless family living with four generous bedrooms, including a master with ensuite and walk-in robe. The open-plan kitchen, dining, and living areas flow seamlessly to the outdoors through sliding doors, perfect for entertaining or relaxing. A dedicated walk-through laundry, located just off the garage, adds extra convenience, while the thoughtful design balances comfort, style, and functionality—making it an ideal choice for growing families.

Enquire
Download

Home Size

158m²

Land Size

420m²
4
1
2
2
Double
Key Features
Designer Kitchens with Stone Benchtop
Open Plan Kitchen/Living/Dining Areas
Four Double Bedrooms
Ensuite & WIR in Master
Walk-through Laundry
Tenant Move-In Ready