Lot 3, Te Whaiawa West Melton

$1,009,500

*Artist impression only. © Copyright of Today Homes Limited.
Lot 3, Te Whaiawa West Melton
$1,009,500

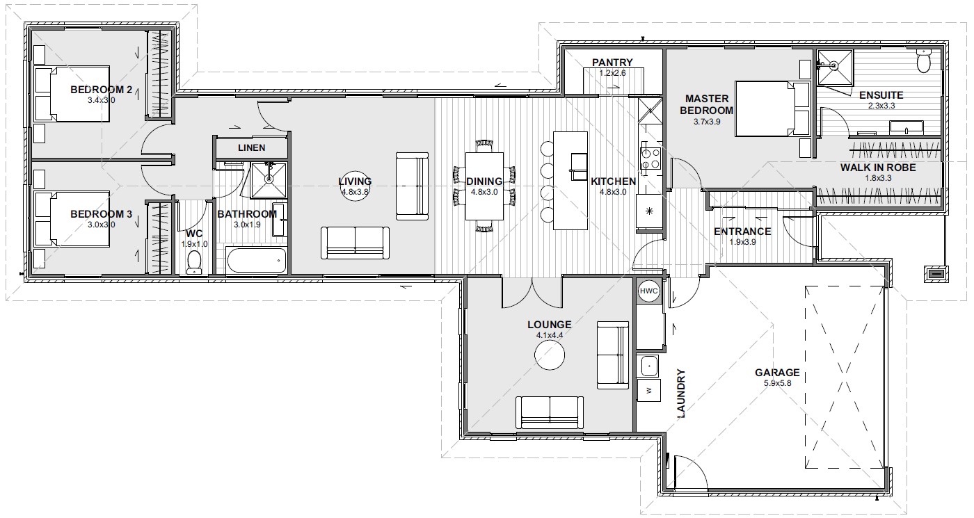
The HANSEN is a thoughtfully designed home balancing space and functionality. The open-plan kitchen, dining, and family area create a central hub, while a separate media room offers a private retreat. The master suite boasts a spacious walk-in wardrobe and ensuite, while two additional bedrooms are tucked away for privacy. A walk-in pantry enhances the kitchen’s efficiency, and ample storage throughout makes everyday living effortless. With internal-access garage and laundry in the garage, this home offers practicality and modern comfort in a well-zoned layout.

Enquire
Download

Home Size

197m²

Land Size

560m²

Width

12.74m

Length

24.64m
3
1
2
2
Double
Key Features
Designer Kitchen with Stone Benchtop
Walk in Pantry
Three Double Bedrooms
Ensuite and Walk In Wardrobe to Master
Fantastic Family Home