Lot 214, Earlsbrook, Lincoln

Progressive Payments: $845,000

*Artist impression only. © Copyright of Today Homes Limited.
Lot 214, Earlsbrook, Lincoln
Progressive Payments: $845,000

The advertised price is for a Progressive Payment structure with a Gross Yield of 4.61%. This package is also available as a Turnkey for $881,000 with a Gross Yield of 4.42%. Rental Appraisal information is available in the download.

Don't miss out on this tenant-ready Investment package! Includes soft landscaping, blinds package, letterbox and clothesline.

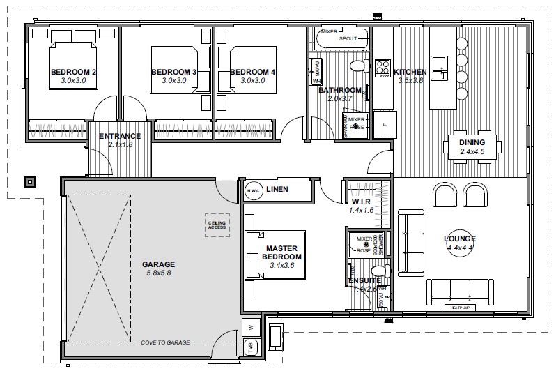
The WAIPARA offers a well-balanced layout, ideal for families seeking space and practicality. The open-plan kitchen, dining, and lounge area creates a seamless flow, perfect for entertaining. A walk-in wardrobe and ensuite make the master bedroom a private retreat, while three additional bedrooms are positioned for convenience. A central family bathroom, generous linen storage, and an internal access double garage with laundry enhance functionality. Designed for effortless living, The Waipara combines modern style with everyday comfort.

Enquire
Download

Home Size

167m²

Land Size

493m²
4
1
2
2
Double
Key Features
Designer Kitchen with Stone Benchtop
Four Double Bedrooms
Large Family Bathroom
Open Plan Kitchen/Dining/Living
Internal Access Double Garage
Tenant Move-In Ready