Lot 78, Hampton Grove, Prebbleton

Progressive Payments: $775,000

*Artist impression only. © Copyright of Today Homes Limited.
Lot 78, Hampton Grove, Prebbleton
Progressive Payments: $775,000

The advertised price is for a Progressive Payment structure with a Gross Yield of 5.03%. This package is also available as a Turnkey for $805,000 with a Gross Yield of 4.84%. Rental Appraisal information is available in the download.

Don't miss out on this tenant-ready investment package! Includes soft landscaping, blinds package, letterbox and clothesline.

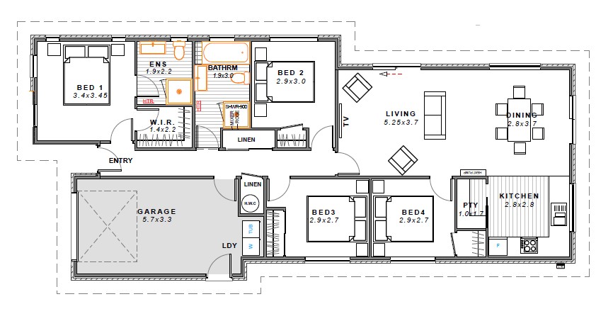
The GRENADIER is a cleverly designed, compact four-bedroom home that maximizes space without compromising comfort. The open-plan kitchen, dining, and living area creates a welcoming hub, complete with a walk-in pantry for added storage. A single garage with a convenient laundry nook adds functionality, making this home perfect for longer sections, and families wanting a compact design that still offers spacious, open-plan living and room for everyone.

Enquire
Download

Home Size

139m²

Land Size

358m²
4
1
2
2
Single
Key Features
Designer Kitchens with Stone Benchtop
Open Plan Kitchen/Living/Dining Areas
Four Double Bedrooms
Ensuite & WIR in Master
Laundry in Garage
Tenant Move-In Ready