Lot 59, Stage 5, Broadfield Grange, Rolleston

$734,500

*Artist impression only. © Copyright of Today Homes Limited.
Lot 59, Stage 5, Broadfield Grange, Rolleston
$734,500

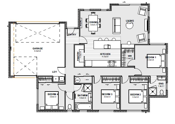
This custom home plan is perfectly positioned to capture the warm west and north-facing sun. It features a spacious open-plan kitchen, dining, and living area designed for modern family living. The master bedroom includes a private ensuite and a walk-in wardrobe, complemented by three additional well-appointed bedrooms. A separate toilet and a contemporary family bathroom provide added convenience. The home also includes a generous walk-in pantry and a secondary garage door that offers easy access to the rear of the section.

Enquire
Download

Home Size

170m²

Land Size

489m²

Width

11.8m

Length

17.4m
4
1
2
2
Double
Key Features
Designer Kitchen with Stone Benchtop
Walk In Pantry
Four Double Bedrooms
Family Bathroom
Double Garage with Internal Access and Secondary Garage Door
Master with Ensuite and WIR