Lot 473, Arbor Green, Rolleston

Progressive Payments: $1,025,000

*Artist impression only. © Copyright of Today Homes Limited.
Lot 473, Arbor Green, Rolleston
Progressive Payments: $1,025,000

The advertised price is for a Progressive Payment structure with a Gross Yield of 5.75%. This package is also available as a Turnkey for $1,075,000 with a Gross Yield of 5.49%. Rental Appraisal information is available in the download.

Don't miss out on this tenant-ready Home & Income investment package! Includes soft landscaping, blinds package, letterbox and clothesline.

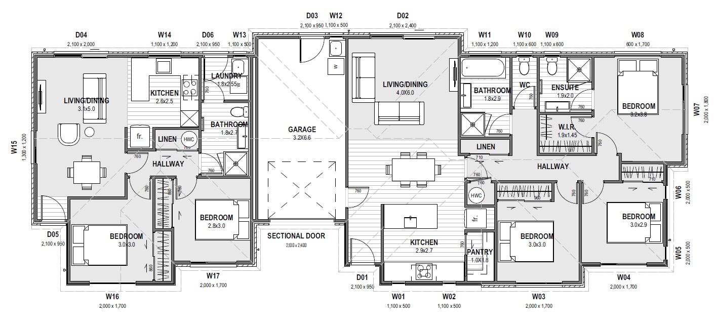
This smartly designed home & income plan features a spacious 3-bedroom, 2-bathroom main home with internal-access garage, alongside a fully self-contained 2-bedroom unit — ideal for extended family or rental income. Each has its own kitchen, laundry, and private entry, offering flexibility and independence under one roof.

Enquire
Download

Home Size

191m²

Land Size

444m²
5
2
3
3
Single
Key Features
Designer Kitchens with Stone Benchtop
Open Plan Kitchen/Living/Dining Areas
Two Double Bedrooms in Unit 1
Three Double Bedrooms in Unit 2
Single Internal Access Garage off Unit 2
Tenant Move-In Ready